KYN(SGM-GK28)-12型

KYN(SGM-GK28)-12型铠装移开式户内交流金属封闭开关设备适用于10kV三相交流50Hz电力系统,用于接受和分配电能并对电路实行控制、保护及监测。开关设备的可移开部分可配置真空断路器和真空接触器等元器件。
产品符合GB3906《3.6kV~40.5kV交流金属封闭开关设备和控制设备》、GB/T  11022《高压开关设备和控制设备标准的共用技术要求》、DL/T404《3.6kV~40.5kV交流金属封闭开关设备和控制设备》DL/T  593《高压开关设备和控制设备标准的共用技术要求》等标准规定。

 使用场所及使用要求  环境温度:最高温度+40℃、最低温度-15℃、日平均值不大于+35℃;

环境湿度:日平均相对湿度不大于95%,月平均相对湿度不大于90%,温度聚降时,可能凝露;

海拔高度:不高于1000m

地震烈度:不超过8

安装场所:没有火灾、爆炸危险,没有严重污秽、化学腐蚀及剧烈振动的场所;

对特殊工作条件,由制造厂与用户协商并按标准进行修正。

 型号、规格系列及其说明  KYN(SGM-GK28)-12/-□型铠装移开式户内交流金属封闭开关设备

金属铠装

Y移开式

N户内

SGM-GK企业代号

28设计序号

12额定电压(kV)

额定电流(A)

额定短路开断电流(kA)

 主要技术参数  

名称

单位

数据

额定电压

kV

12

额定电流

A

1250、1600、2000、2500、3150、4000

额定频率

Hz

50

1min工频耐受电压

kV

(极间、极对地/断口)42/48

雷电冲击耐受电压

 

(极间、极对地/断口)75/85

额定短路开断电流

(断路器)

kA

20、25、31.5、40

额定短路关合电流(峰值)(断路器、接地开关)

 

40、63、80、100

额定短时耐受电流

 

20、25、31.5、40

额定峰值耐受电流

 

40、63、80、100

额定短路持续时间

s

4

防护等级

 

外壳IP4X

断路器室门打开为IP2X

内部燃弧等级

 

IAC

运行连续性丧失等级

 

LSC2B

柜体尺寸(宽X深X高)

mm

≤1250A

800×1500×2300

 

 

>1250A

1000×1500×2300

 

 

架空进线

深度改为1660

额定操作电压

V

按技术规范要求

 主要技术特点  1、柜体结构采用敷铝锌钢板经多重折弯组装而成,精度高、重量轻、机械强度高、抗腐蚀及氧化心梗强;2、开关设备分为母线室、电缆室、断路器室、仪表室,各隔室完全采用金属铠装彻底分隔。除仪表室外,其余隔室均设独立的泄压通道;3、所有电气设备的操作均可在柜门关闭状态下进行;4、柜壳密封度高,防护等级IP4X;5、强制性机械“五防”联锁简单、稳定、可靠,可有效防止误操作;6、可配用希格玛公司生产的VD5、VS1及进口3AH5、VD4、VPR等弹簧及永磁真空断路器,手车互换性程度高,真空断路器及其操动机构仅需少量维护;

7、二次线敷设于尺寸宽裕的线槽内,工艺美观,便于接线;

8、电缆室有充裕的空间,可联接多根电缆,同时可以观察到电缆室安装情况;

9、快速合分的接地开关具备短路关合能力,用于主回路接地;

10、可与各种功能单元柜直接并柜无需增加转接柜。

 采购须知(注:即简要说明采购时,需方须提供的基础数据)  1、主回路方案及单线系统图、排列图及平面布置图;

2、二次原理及接线图、端子排列图(若无端子排列图按制造厂端子排编排);

3、开关柜电器元件的型号、规格及数量;

4、电气设备汇总表;

5、母线桥结构形式及尺寸等要求;

6、特殊环境条件的要求;

7、附件及备品备件的种类和数量。

 产品图例
 KYN28开关柜本体及并柜结构图
 KYN28开关柜本体及并柜结构图
 KYN28开关柜内部结构图
 KYN28开关柜内部结构图
 KYN28开关柜内部结构图
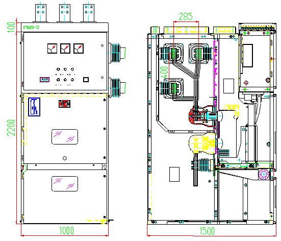
 KYN28开关柜安装尺寸图
 KYN28开关柜安装尺寸图
 KYN28开关柜安装示例图1
 KYN28开关柜安装示例图1